Установка видеонаблюдения в школах

Видеонаблюдение в школах играет важную роль в обеспечении безопасности учащихся и персонала. Оно позволяет оперативно выявлять потенциальные угрозы, быстро реагировать на экстренные ситуации и поддерживать дисциплину внутри образовательного учреждения. Камеры видеонаблюдения помогают защитить детей от посторонних лиц, снизить вероятность конфликтов и нарушений правопорядка, создавая благоприятную атмосферу для учебы и развития каждого ребенка.

Профессиональную установку современной системы видеонаблюдения в Красноярске успешно реализует компания Лансайт.

Сколько это стоит?

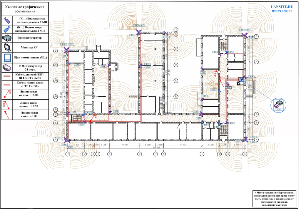
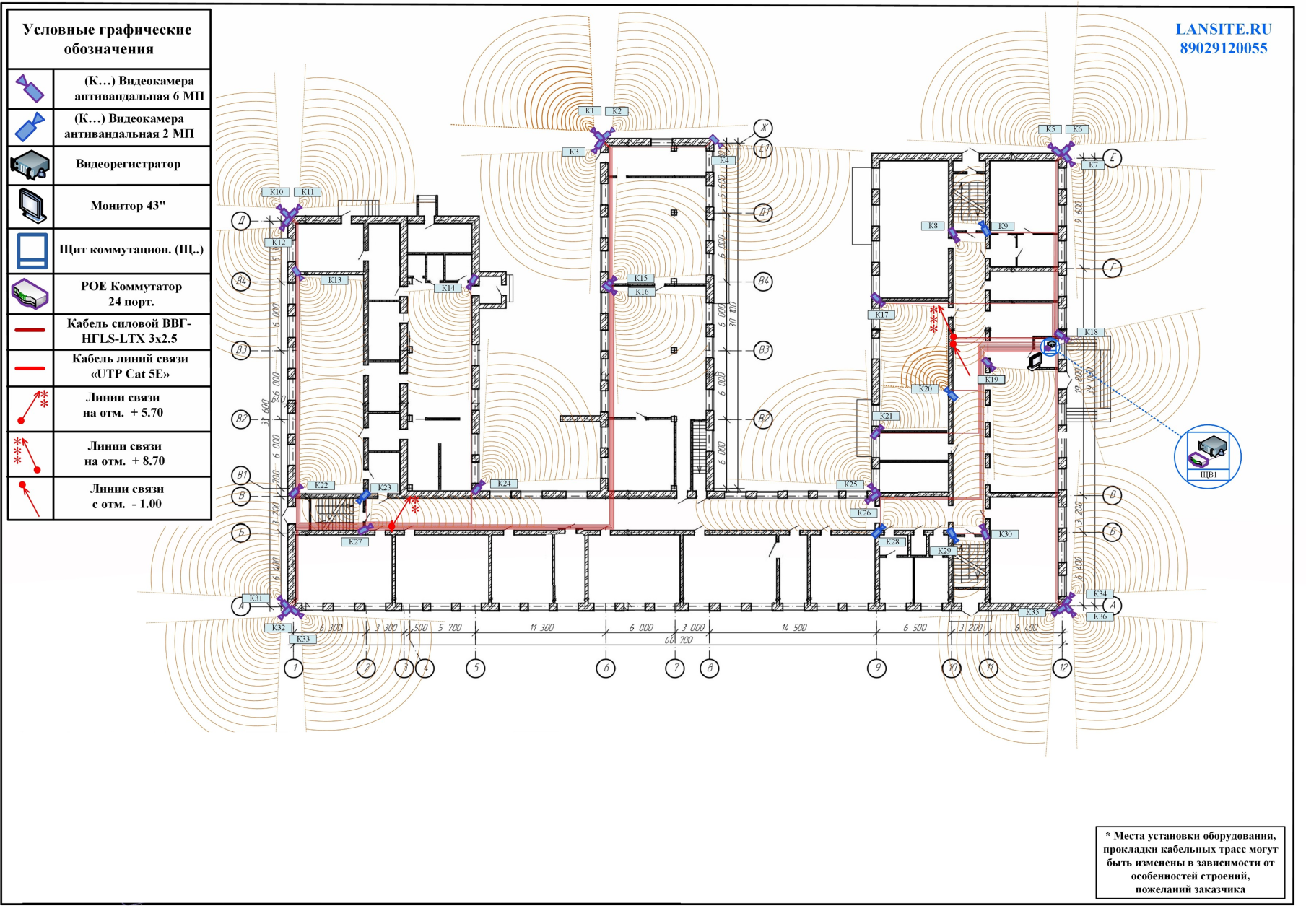
Прилагаем вариант установки системы видеонаблюдения в школах:

Спецификация на оборудование и работы по установке системы видеонаблюдения на 60 камер в школах:

№ п.п.Материалы (работы, услуги)КоличествоЕд.ЦенаСумма
1Антивандальная IP видеокамера «Vesta VC-G460» Матрица «Sony IMX335» — 6МП (3072×2048)44Шт.8 850,00389 400,00
2Антивандальная IP видеокамера «Vesta VC-G420» Матрица «Sony IMX307» — 2МП (1920 х 1080)16Шт.7 280,00116 480,00
3Коробка распределительная «SP Box»60Шт.320,0019 200,00
4Шкаф сетевой настенный 19″, 6U, 600*6002Шт.10 640,0021 280,00
5Шкаф коммутационный ШТК-Э-24.6.6-13АА1Шт.37 560,0037 560,00
6iRUS-NVR2324″ 32-канальный цифровой IP видеорегистратор (4HDD — 10ТБ)2Шт.62 890,00125 780,00
7Vesta VNVR-8532 32-канальный цифровой IP видеорегистратор ПЕНТАПЛЕКС (M 2HDD rev 5.0)1Шт.23 890,0023 890,00
8Жесткий диск 8ТБ Western Digital6Шт.25 000,00150 000,00
9Полка телекоммуникационная консольная 1U5Шт.1 340,006 700,00
10PoE-коммутатор для систем цифрового видеонаблюдения «VSW-226P» — 24 порт3Шт.26 950,0080 850,00
11PoE-коммутатор для систем цифрового видеонаблюдения «VSW-318P» — 16 порт1Шт.16 350,0016 350,00
12Дифференциальный автомат АВДТ-63 10А/ 30мА2Шт.1 370,002 740,00
13Кабель силовой ВВГнг(А)-LSLTx 3х1.5 (N.PE)140М90,0012 600,00
1432″ (80 см) LED-телевизор Samsung UE32N4000AUXRU2Шт.29 730,0059 460,00
1543″ (108 см) LED-телевизор Philips 43PUS76081Шт.39 320,0039 320,00
16Кронштейн крепления телевизора3Шт.2 320,006 960,00
17ИБП Ippon Smart Winner II 2000E, 2000ВA1Шт.72 800,0072 800,00
18Кабель UTP Cat 5E LS пониженной пожарной опасности2 070М39,0080 730,00
19Установка в проектное положение и отладка видеокамеры60Услуга1 950,00117 000,00
20Прокладка, крепление кабельных трасс2 210Услуга95,00209 950,00
21Сборка коммутационного шкафа, настройка, конфигурация оборудования3Услуга5 000,0015 000,00
22Производство пусконаладочных работ смонтированной системы видеонаблюдения1Услуга179 700,00179 700,00
Итого:1783 750,00₽